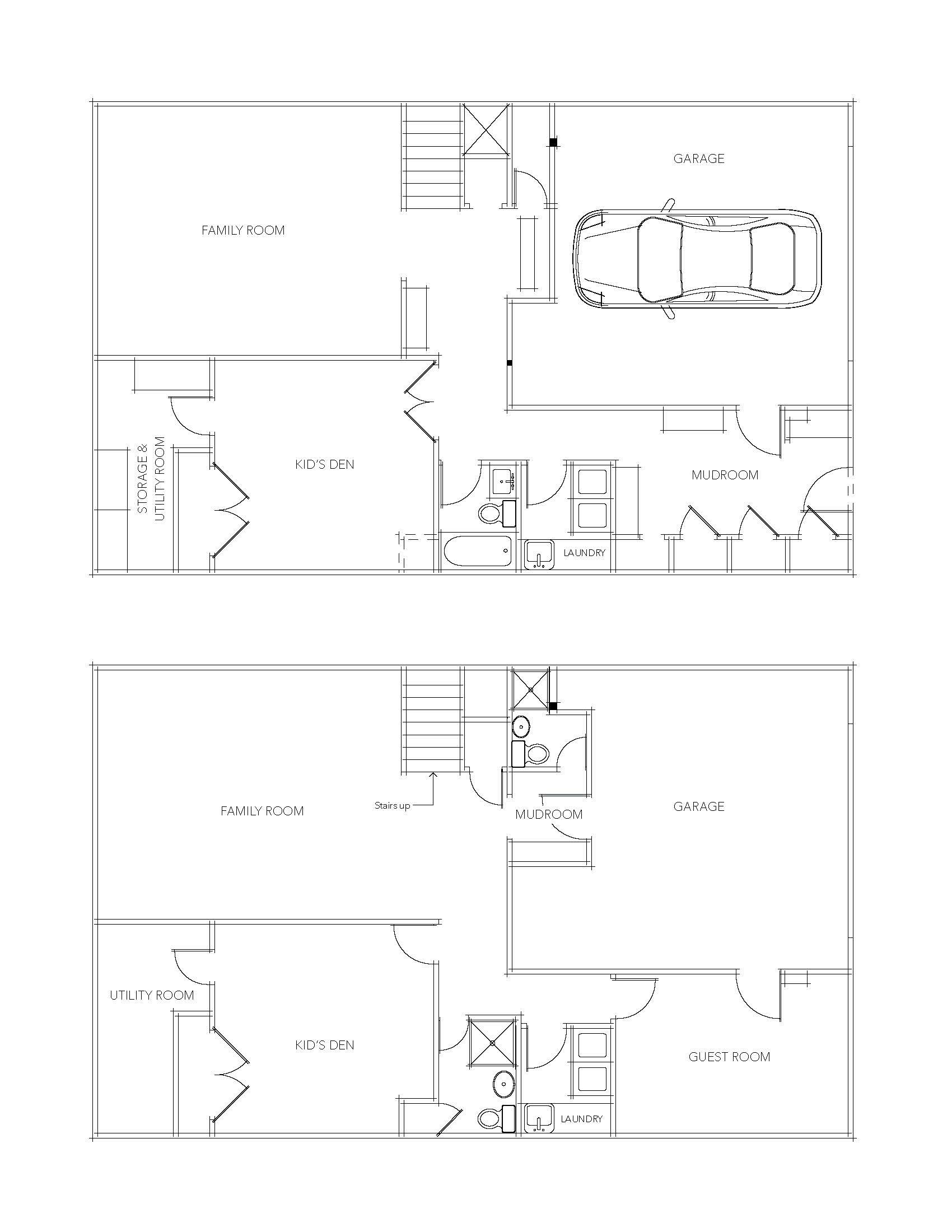
Lower Level (Bucknell)
This client was renovating the lower level of their split level home. They didn’t have a functional garage, enough mudroom-type storage, or general household storage. By ditching the unused guest room and cutting a new exterior door, the new mudroom and entrance totally changed the traffic flow and storage functionality of their home.

