Entry Mudroom (Main St)
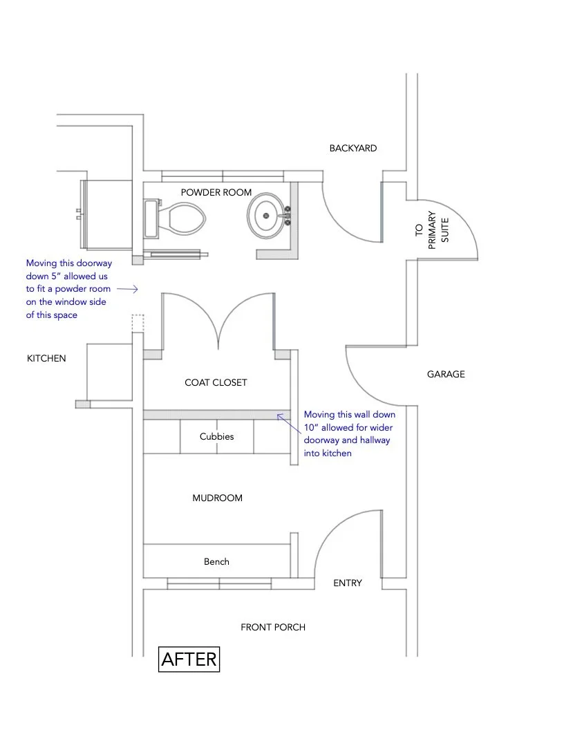
This is a new build house, but the client came to me after the house was framed. The goal here was to add a powder room and coat closet, remove the laundry room, and accomplish this while changing as few of the already framed walls as possible. This was a simple fix that didn’t take long to figure out, yet it will make a huge difference in the function of the space for years to come.

